Accueil > Acheter > NEUNHOFFEN, terrain 140 ares en partie constructible

NEUNHOFFEN, terrain 140 ares en partie constructible

Prix : 195 000 €
Dont honoraires à la charge du vendeur
Aux portes de NIEDERBRONN-LES-BAINS, à NEUNHOFFEN (67110), terrain plat en pleine nature :

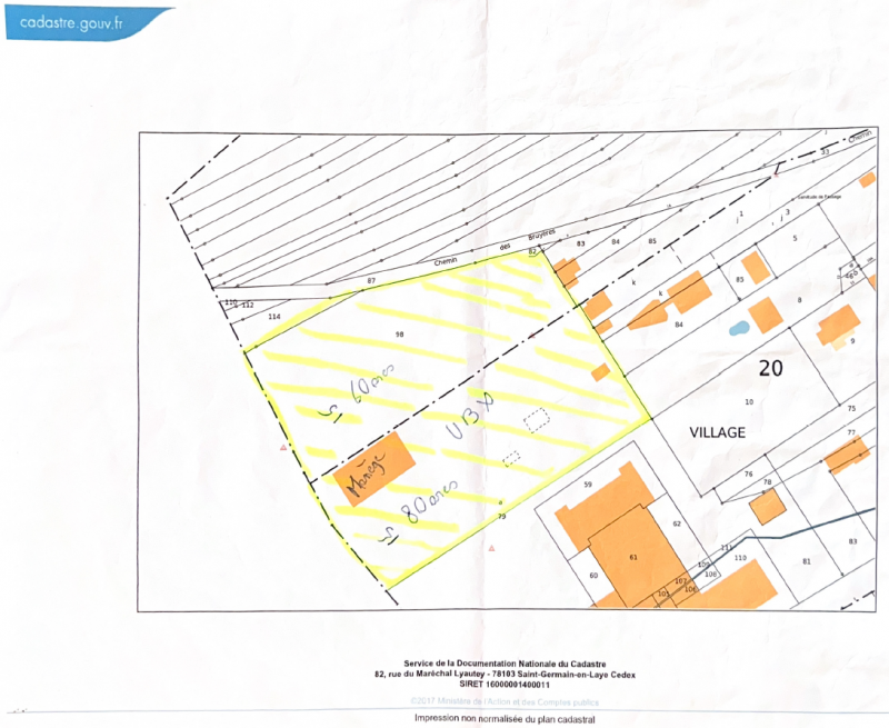
- constructible pour une habitation sur environ 25 ares.
- dispose d'un ancien manège à chevaux d'environ 530 m² en parfait état pouvant être réhabilité en habitation sur environ 25 ares.
- dispose de 4 petits chalets des années 70 facilement démontables.
- dispose de terres forestières en zone N d'environ 80 ares.

De magnifiques arbres ornent la parcelle.
Possibilité de se raccorder à l'assainissement du village (tout à l'égout), à l'électricité, à l'eau, éligible à la fibre optique.
Accès par un chemin forestier facilement accessible.

Installez-vous, créez un petit domaine dans ce beau parc, petit paradis à l'abri des regards dans un environnement exceptionnel !

A 13 minutes de la gare / 35 min de Haguenau / Village très dynamique, nombreuses associations, écoles - crèche - périscolaire.

Non autorisées : Habitations légères (type tiny house). Uniquement pour projet d'habitation et possibilité de réhabilitation du manège à chevaux en habitation.

Honoraires à la charge du vendeur.
DPE non applicable.
Voir nos honoraires
search Type de bien : Terrain
place Localité : NEUNHOFFEN
dashboard Surface terrain (m²) : 14000m²
visibility Vue : Environnement exceptionnel
Pour en savoir plus sur ce bien, contactez nous
Les champs indiqués par un astérisque (*) sont obligatoires